PECK CITY LIFE

Bistrot gastronomico, Milano - Italia

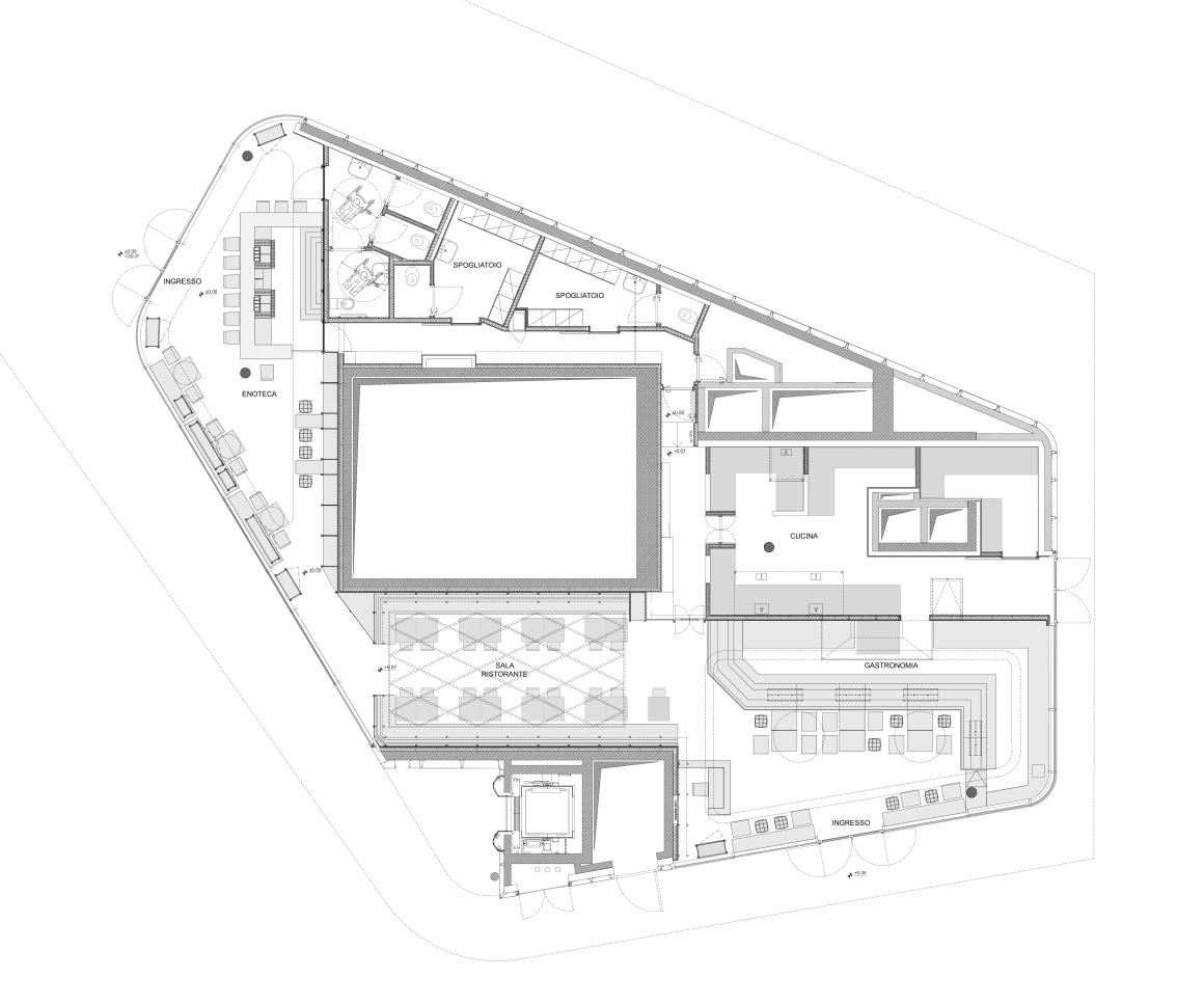
Peck CityLife occupa un padiglione dalle forme organiche in Piazza Tre Torri, situato in posizione centrale tra l'ingresso del Shopping District e l'architettura iconica che simboleggia questo nuovo spazio urbano. Il nostro concept fonde armoniosamente l'identità storica di Peck con un design senza tempo e altamente contemporaneo. L'interno è strutturato per creare una narrazione fluida attraverso la gastronomia, il ristorante, l'enoteca e il cocktail bar, favorendo un'esperienza continua. Sebbene ogni area svolga una funzione distinta e si relazioni con il pubblico in modo diverso, esse contribuiscono collettivamente a un insieme unico e coeso.

Lo spazio rende omaggio alla Milano del dopoguerra – la sua ricostruzione, il boom economico e la visione industriosa dei suoi cittadini, l'ambiente stesso in cui lo status leggendario di Peck si è affermato. Questo tributo è trasmesso attraverso riferimenti sottili, piuttosto che palesi, incarnando il carattere sobrio ma audace di Milano. Il nostro obiettivo era creare un ambiente ricco di elementi simbolici, armonizzando l'eredità storica di Peck con la sua evoluzione moderna e contemporanea. I materiali iconici di Peck, come il legno, il ferro nero e il rame, sono stati reinterpretati e incorporati in modi innovativi. La terrazza esterna, o 'dehors', presenta una struttura minimalista e completamente vetrata, che riecheggia l'iconica palette di colori nero e verde della gastronomia con il suo design essenziale.

PROGETTO DI INTERIOR
Vudafieri-Saverino Partners, Claudio Saverino and Tiziano Vudafieri

TEAM DI DESIGN 
Simona Quadri, Anna Petrata, Alessandra Bottiroli, Nicolò Spina

FOTO 
Santi Caleca