GYMBOREE PLAY & MUSIC

Childcare spaces, Shenzhen and Suzhou - China

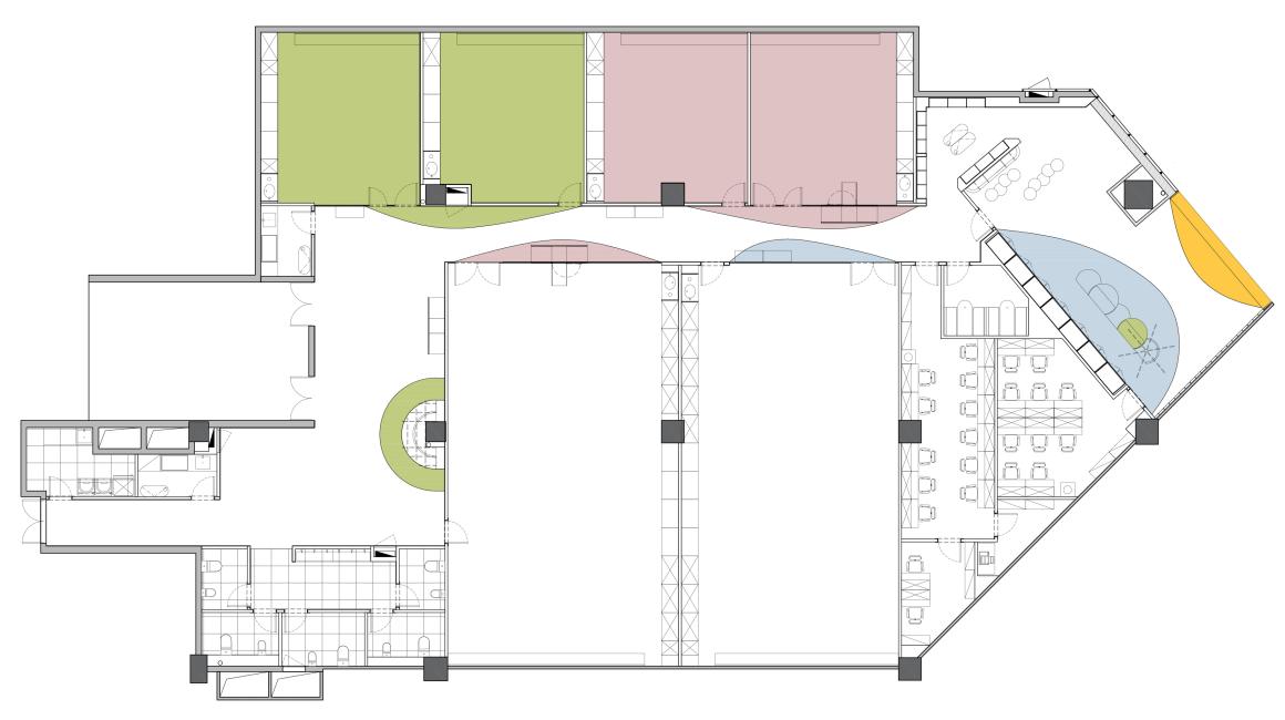
Gymboree Play & Music, an American brand known all over the world and especially in Asia, offers courses for children up to the age of 6, with the aim of developing their cognitive and relational skills in early childhood, through play activities based on listening to music, art classes and smart toys.

We came up with the concept of the schools - two in Shenzhen and two in Suzhou - as friendly, stimulating places, capable of arousing children's curiosity and also encouraging them to learn. The spaces are designed to interpret the theme of "travel" through shapes, colours and materials, with different areas recreating different environments: the ocean, the forest, the desert, the Arctic, the canyon and space. A magical, dreamlike context stimulates the children to use their imagination to live unique experiences and visit unknown worlds.

PROJECT

Vudafieri-Saverino Partners, Tiziano Vudafieri and Claudio Saverino

DESIGN TEAM 

Anna Petrara, Stefano Piontini, Ana Arango, Iris Cai, Kun Yang

PHOTO

Alan Grillo, Dirk Wiblen